Lorem ipsum dolor sit amet, consectetur adipiscing elit. Etiam consectetur enim ipsum, a iaculis justo volutpat sed.

Modus Doors System

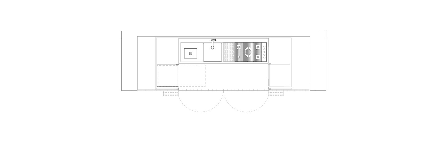
The Modus Doors System of horizontal-opening doors allows for the design of hidden kitchen areas made to measure and with customised choice of finishes. This way, although the organised operational area can be hidden, it is a veritable live-in kitchen complete with dedicated lighting for the worktop and for the room itself.

Examples of solutions made possible by using the Modus Doors System: from the creation of built-in wood panelling walls to rational portals integrated with the wall, all the way to actual architectural divisions that can conceal operational kitchen spaces or perfectly inhabitable rooms. They can be organised into specific functions, are complete with lighting system and in the design phase offer customised choice of sizes and finishes.

Modus layout with internal wall panelling, modus layout pull-out door, modus layout with wall panelling for volume, modus layout in plasterboard

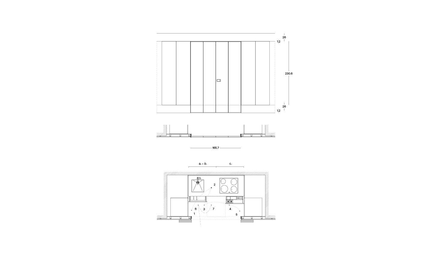
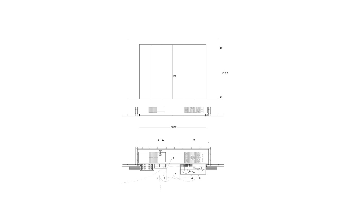
a. washing b. preparation c. cooking
1. Fridge 2. Food Preparation 3. Sink 4. Cooktop 5. Oven 6. Waste bin 7. Dishwasher 8. Tall units
–.–.–. Washing cycle
------ Food Preparation cycle

Wood panelling, 270 cm tall in fossil oak with Modus horizontal folding, 180° opening 6-door system, 4 cm thick. Inside, Italia kitchen with door in stainless steel.

2 single doors
W door 30,65 cm 
W passage 59,2 cm
W door 40,65 cm
W passage 79,2 cm
W door 50,65 cm 
W passage 99,2 cm

2 double doors
W door 40,65 – 50,65 cm
W passage 120 – 150 cm

3 single doors
W door 40,65 – 50,65 cm
W passage 160,9 – 200,9 cm

3 double doors
W door 30,65 – 40,65 – 50,65 cm
W passage 182,4 – 242,4 – 302,4 cm

Shopping cart